Indhold
Lokalplanen udlægger området til landskabsteknisk anlæg i form af jordvolde, tekniske anlæg i form af regnvandsbassiner, trafikanlæg, og grønt område.
Lokalplanen omfatter et areal på 3,5 ha og terrænudformningen i lokalplanområdet gør det muligt at indarbejde op til ca. 90.000 m3 jord.
Lokalplanområdet grænser op til statsvejen, Frederikssundsvej. Frederikssundsvej skal jf. Anlægslov nr. 1506, 2009, udvides til motorvej, Frederikssundsmotorvejen, og der skal etableres en tilkørselsrampe langs lokalplanens vestlige grænse.
Lokalplanen fastlægger rammerne for voldenes placering og udformning, så der i videst muligt omfang tages hensyn til det omkringliggende område med veje og jernbane. Jordvolden udformes med en landskabelig bearbejdning, der mod vest udformes som teknisk jordvold (anlæg 1:2) og mod øst (ind mod Vinge by) som landskabelige jordvolde med varierende stigninger og fald. Jordvolden opbygges så den i sin form ambitiøst symboliserer indgangen til Vinge.
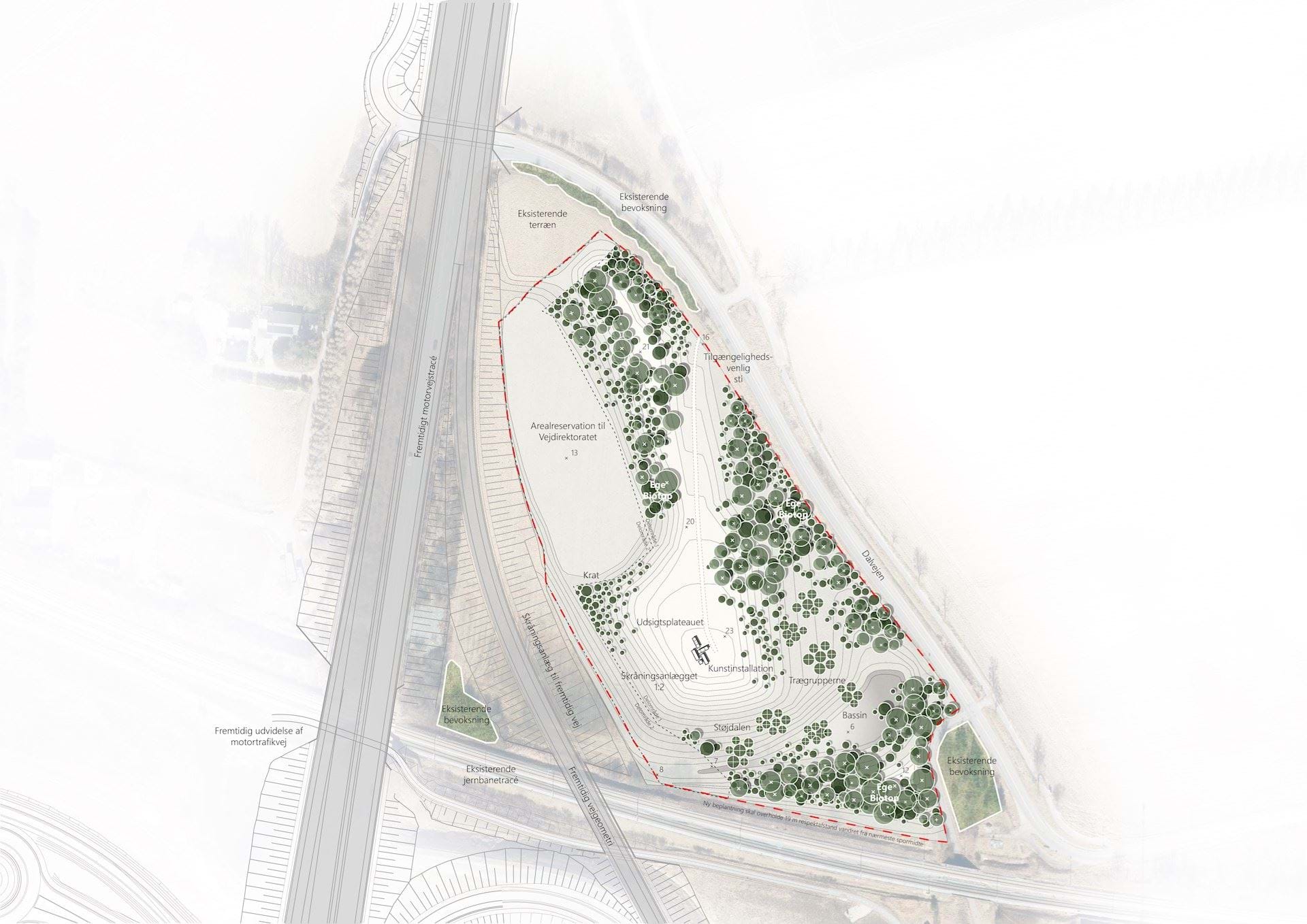
Indenfor lokalplanafgrænsningen etableres en jordvold i op til kote 23, svarende til 7 meter over den skitserede motorvejsrampes nærmeste kørebanekant. I terrænet er mod vest indarbejdet et plateau i kote 13 til et regnvandsbassin til forsinkelse af overfladevand fra det planlagte motorvejsanlæg.
Planen muliggør desuden at der kan etableres naturlige regnvandsbassiner til fordampning og nedsivning.
Figur 2: Plan, der viser udformningen af terrænet med fordybninger i terræn til naturligt regnvandsbassin og højderyg i op til kote 23 samt arealreservation til Vejdirektoratets bassin. Derudover ses det foreløbige motorvejsanlæg.
Landskabsprojektet indeholder en række initiativer, som vil forbedre oplevelsesværdien for områdets brugere og vilkårene for flora og fauna. Der vil blandt andet etableres ny natur, da dyrkede landbrugsarealer fritlægges til grønt område med varieret beplantning. Jordvoldene beplantes med områder med tæt skovlignende beplantning, og områder med klynger af hjemmehørende træer og buske. De resterende mere åbne områder beplantes med engbeplantning. Al beplantning skal være egnstypisk og hjemmehørende, og planen vil være med til at sikre en forbedret biodiversitet i området.
Yderligere muliggør planen, at området gøres tilgængeligt ved en stiføring, der leder op til et udsigtsplateau på toppen af jordvolden. Herfra kan man se udover det omkringliggende landskab, Roskilde Fjord og Vinge. På toppen kan placeres et vartegn/et kunstværk, så det er synligt for byen og til- og forbikørende.
På sigt forventes en forskydning af Dalvejen i østlig retning, og lokalplanområdet vil da blive en del af et større anlæg, der vil etableres som et sammenhængende landskab med bynær skov, stiforbindelser og klimaløsninger til regnvandshåndtering.
Figur 3: Illustrationsplan.
Eksisterende forhold
Lokalplanområdet i dag rummer agerjord. Området er kommunalt ejet og Frederikssund Kommune forpagter jorden ud.
Arealet ligger i landzone, og skal forblive i landzone.
Landskabsmæssigt skråner området med fald i sydlig retning. Terrænet ligger således i kote 16,5 (DVR90) i nord, hvorfra det falder til kote 8,0 (DVR90) mod banen i områdets sydlige del.
Figur 4: Kort med eksisterende forhold inden for lokalplanområdet, herunder matrikelgrænser, terrænkoter og Novafos' hovedledning. Af kortet fremgår desuden placeringen af Vejdirektoratets eksisterende regnvandsbassin, R.V.3, syd vest for lokalplanafgrænsningen.
Sydvest for lokalplanområdet, i det sydvestlige hjørne af matrikel 19o, har vejdirektoratet et regnvandsbassin, R.V.3., hvor overfladevand fra Frederikssundsvej renses og forsinkes inden det ledes til recipient (Roskilde Fjord via Marbækrenden). Regnvandsbassinet ligger i dag uden for lokalplanområdet, men vil i forbindelse med etablering af det planlagte motorvejsanlæg og tilkørselsrampe flyttes til en placering inden for lokalplanområdet.
Novafos har en deklareret hovedledning langs Dalvejen øst for lokalplanområdet, der løber langs lokalplanområdets østlige grænse og ligger indenfor planområdet i det sydøstlige hjørne. Inden for en deklarationszone på 2,5 m fra centerlinjerne for den eksisterende ledning må der ikke bebygges eller beplantes. Ledningens placering fremgår af figur 4.
Langs lokalplanområdets sydlige grænse mod jernbanen er partier med træer/buske, især hvidtjørn. Træerne er lave, krogede og ældre. Træerne planlægges ikke fældet.
Der er i dag ingen trafik til eller indenfor området bortset fra kørsel i forbindelse med markarbejde på arealet. Der eksisterer ingen interne veje på markarealet.


