
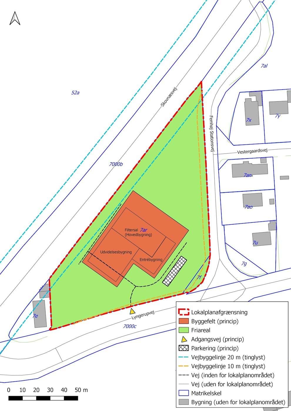
Kortbilag 2: Viser byggefelt, vejforhold, overkørsel samt friarealer.

Kortbilag 2: Viser byggefelt, vejforhold, overkørsel samt friarealer.

Kortbilag 2: Viser byggefelt, vejforhold, overkørsel samt friarealer.

Kortbilag 2: Viser byggefelt, vejforhold, overkørsel samt friarealer.
Forslagsdato:
03-12-2025
Høringsperiode:
15-12-2025 - 09-02-2026
Planens status: